Die Wohnung ist momentan vermietet und nicht verfügbar!
Die warme Eleganz des Jugendstils ist in der Wohnung im 1. OG spürbar. Dafür sorgen die hohen Räume, Stukkaturen und die aufwendig verlegten Parkettböden. Die Wohnung ist in Wohn-/Essraum mit offener Küche sowie Schlafbereich mit drei Zimmern, kleinem Balkon und einem Bad aufgeteilt – perfekt für Paare und kleine Familien.




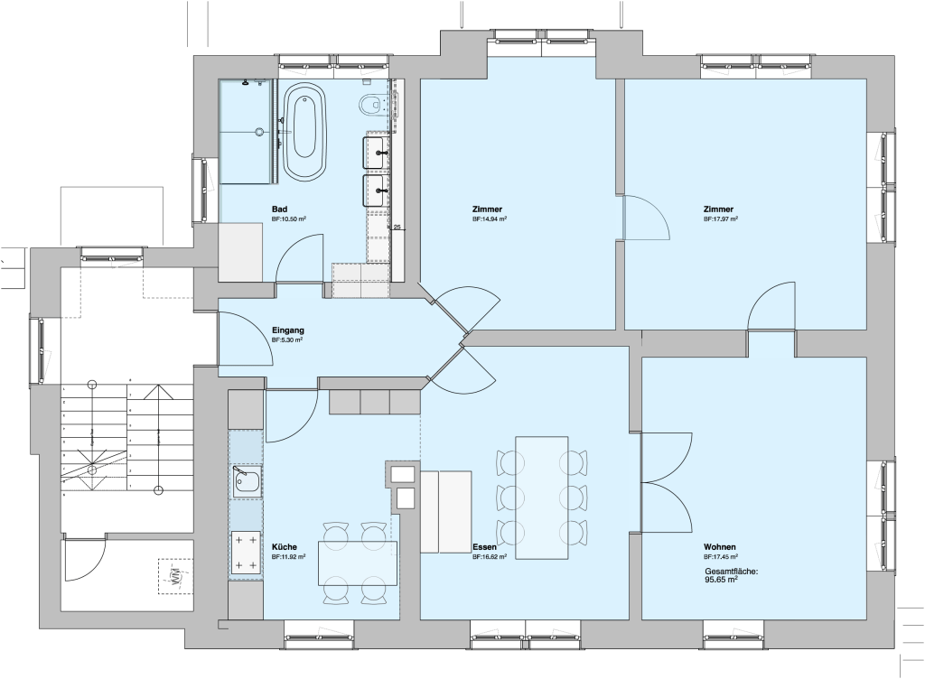
Grundriss

Ausstattung
- 2023 renovierte und modernisierte Wohnung
- 1. Obergeschoss
- Fläche: 100m2
- Wunderschöne Parkettböden aus der Jugendstilzeit in allen Zimmern
- Kleiner Balkon
- Küche gefliest mit Glaskeramikkochfeld inkl. integriertem Dampfabzug, Chromstahlarbeitsplatte, Geschirrspüler, Backofen und Kühlschrank mit Gefrierfach
- Bad mit Doppellavabo, Dusche, freistehender Gussbadewanne und Parkett
- Eigenes Kellerabteil 2m x 2.5m (5m2)
- Eigenes Reduit im Treppenhaus
Inklusive
- Mitbenutzung der Dachterrasse mit wunderschönem Panorama
- Nutzung der Waschküche (ausgestattet mit Lufttrockner)
- Mitbenutzung Garten, bei Interesse auch Gartenbewirtschaftung möglich
Kosten
- Mietkosten CHF 1’480.- / Monat
- Nebenkosten inkl. Heizkosten und Wasser Akonto CHF 200.- / Monat
- Parkplatz CHF 60.- / Monat
Termine
Die Wohnung ist momentan vermietet und nicht verfügbar!
